Ushuaia, Argentina – 2024
Proyecto de remodelación integral de un monoambiente destinado a alquiler temporario en la ciudad de Ushuaia.
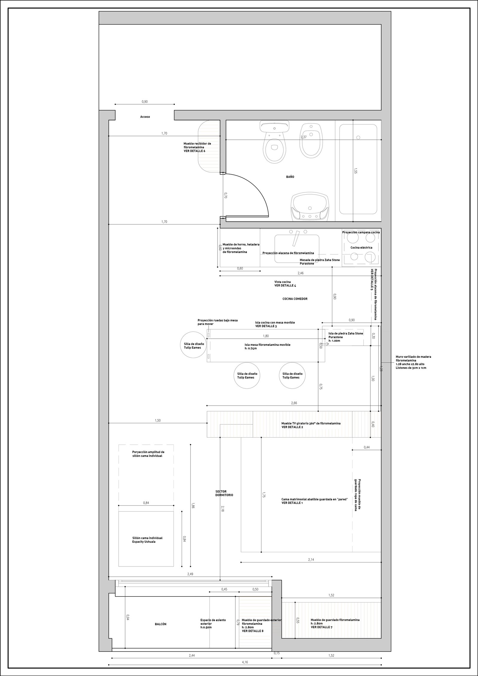
El principal desafío fue maximizar la funcionalidad dentro de una superficie reducida, logrando que cada elemento cumpliera más de una función sin perder calidez ni identidad.
Se diseñó mobiliario completamente a medida, utilizando melamina símil madera para generar un ambiente cálido que contraste con el clima frío característico del sur argentino. La elección material busca aportar confort visual y coherencia en un espacio compacto.
La isla central incorpora una mesa móvil extensible que se adapta a distintas configuraciones de uso, permitiendo ampliar la superficie de apoyo o comedor según la cantidad de huéspedes.
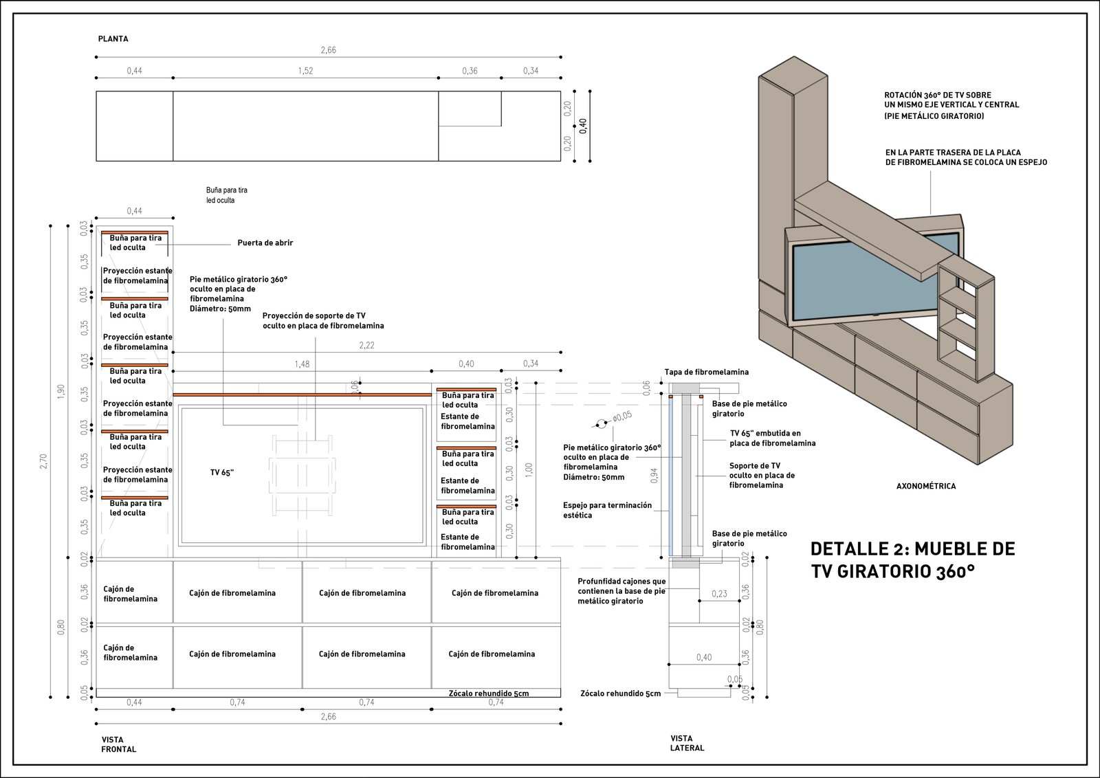
El mueble divisor cumple un rol estructurador del espacio: organiza la cocina-comedor y la zona de descanso sin cerrar visualmente el ambiente. Integra un sistema de televisión con giro de 360°, permitiendo su uso desde ambos sectores. Del lado del dormitorio, el mismo módulo aloja una cama rebatible que puede ocultarse completamente, liberando superficie durante el día y optimizando el uso del espacio. El soporte de cama incorpora además espacio de guardado para ropa blanca.
Se proyectó también un armario integrado que mantiene la continuidad material y evita fragmentar visualmente el ambiente.
La iluminación cálida y la unificación de materiales contribuyen a generar armonía y sensación de amplitud, demostrando que en espacios pequeños el diseño estratégico es clave para lograr confort, funcionalidad y carácter.