airbnb 1 dormitorio

Ushuaia, Argentina – 2024

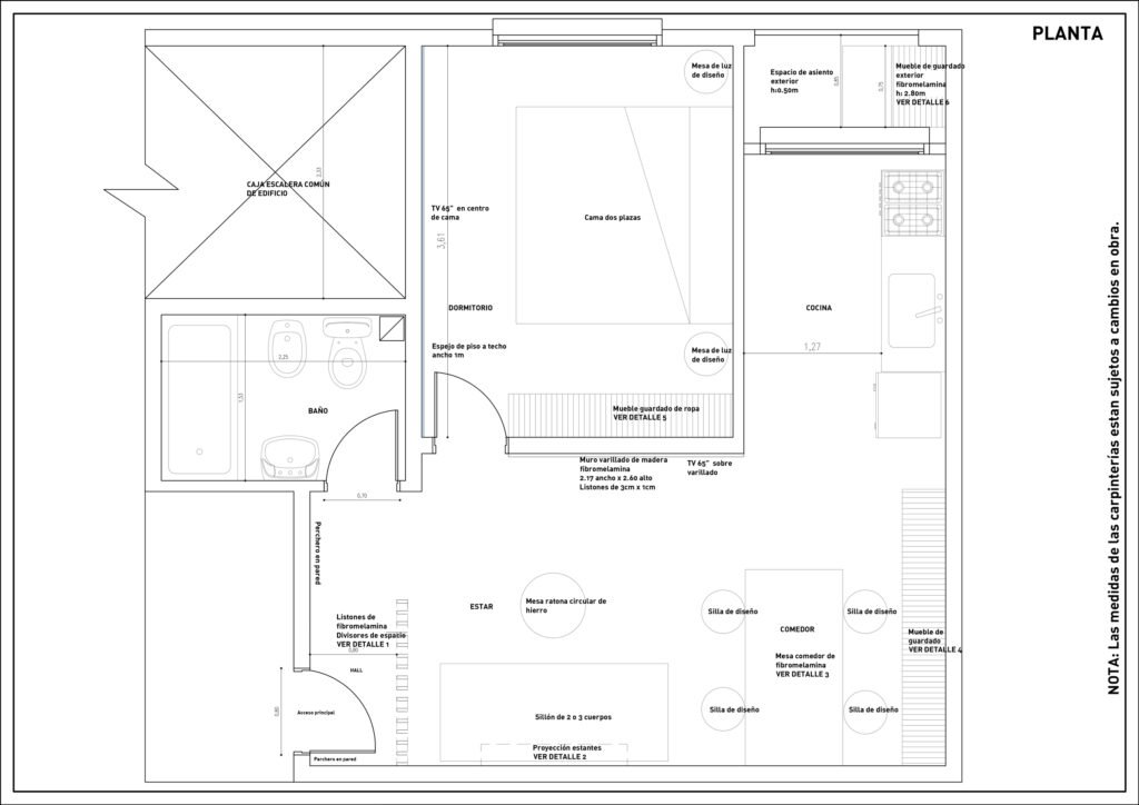
Remodelación de un departamento compacto en Ushuaia, diseñado para alquiler temporario. El proyecto optimiza el espacio mediante mobiliario a medida y una estética cálida y contemporánea.

Remodelación interior

Este proyecto consistió en la remodelación integral de un pequeño departamento destinado a alquiler temporario. El principal desafío fue optimizar cada metro cuadrado para lograr un espacio funcional, cómodo y adaptable a diferentes huéspedes.

Se diseñó un equipamiento a medida que integra cocina, guardado y área social en un único sistema continuo, utilizando melamina símil madera para aportar calidez y contraste frente al clima frío característico de la región. La mesa incorpora un sistema móvil que permite ampliar su superficie según la cantidad de personas, optimizando el uso del espacio.

La propuesta busca generar un ambiente contemporáneo y acogedor, donde la funcionalidad, el orden visual y la materialidad cálida acompañan la experiencia de quienes visitan la ciudad.